Neuer Hauptsitz Camion Transport AG Wil
| Projekt | Wettbewerb |
| Auftraggeber | Camion Transport AG |
| Visualisierungen | First Architecture School |
| Status | Studienauftrag 2024 |
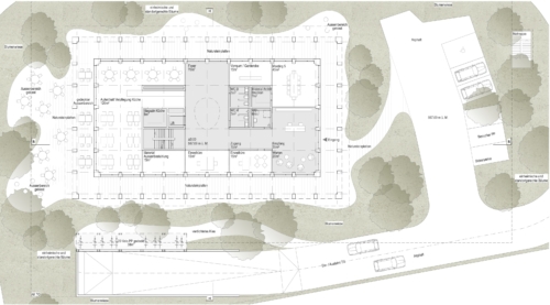
Der zukünftige Sitz der Camion Transport AG wird auf einem zuvor als Parkplatz genutzten Areal im nördlichen Teil des Firmengeländes erbaut. Direkt von der Hubstrasse zugänglich, optimiert die westliche Positionierung des Eingangs die Sichtbarkeit und Zugänglichkeit des Gebäudes. Die gestalterische Orientierung unseres Wettbewerbsbeitrags reflektiert die gegenüberliegende Waldfläche und bindet das Gebäude nahtlos in die umgebende grüne Landschaft ein.
Die Architektur des neuen Hauptsitzes erinnert an eine moderne Pavillon-Struktur mit einer leichten, offenen Erscheinung, die die Grenzen zwischen Innen- und Außenraum verschwimmen lässt. Die umlaufenden Schutzbalkone dienen nicht nur dem Sonnenschutz, sondern ermöglichen auch einen ungestörten Blick auf die umliegende Landschaft und schützen die Fassade vor Witterungseinflüssen. Die Auswahl von Holz als dominierendes Material für die Außenverkleidung unterstreicht das Engagement für ökologische Bauweisen. Das zurückgesetzte Erdgeschoss erweitert sich zu einem Arkadengang, der als soziale und kommunikative Bewegungszone fungiert und die oberen Stockwerke visuell unterstützt.
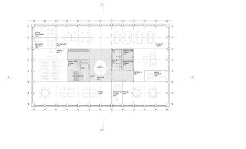
Zudem beherbergt das Erdgeschoss vielfältige Gemeinschaftsbereiche, darunter eine Mensa, die im Sommer in den gartenähnlichen Außenbereich erweitert werden kann, und flexible Besprechungsräume, die eine offene und kommunikative Arbeitsatmosphäre fördern. Durch großflächige Verglasungen wird die natürliche Lichtdurchflutung maximiert, was die Verbindung zur Außenwelt stärkt. Die Büroflächen in den oberen Geschossen sind flexibel gestaltet, um an zukünftige Bedürfnisse angepasst werden zu können, und unterstützen eine Kultur der Offenheit und Zusammenarbeit. Die Begegnungs- und Erschließungszone ist zentral gelegen und fördert durch ihre Anordnung den sozialen Austausch unter den Mitarbeitern. Verschiedene ovale, versetzte Deckenöffnung, bringen Licht bis in die unterste Ebene und schaffen damit eine angenehme Atmosphäre auch bis in den zentralen Bereich des Erdgeschosses.







